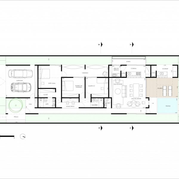
PROJETO DE ARQUITETURA E INTERIORES
Projeto de arquitetura e interiores para a uma Residência unifamiliar localizada na condomínio Morada do Sol em Piratininga – SP.
Dados da Obra:
Projeto: 2021;
Obra: Em andamento;
Área Construída: 248,53m².
Autor:
Sergio Faraulo.



































