PROJETO DE ARQUITETURA (HABITAÇÃO DE INTERESSE SOCIAL) E URBANISMO
Coautoria no escritório Boldarini Arquitetos Associados no desenvolvimento do projeto de Arquitetura e Urbanismo para o Residencial Alexandre Mackenzie na Favela Nova Jaguaré em São Paulo – SP.
Dados da Obra:
Data do Projeto: 2008;
Data da Conclusão da Obra: 2009;
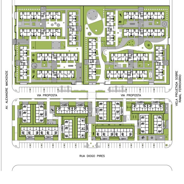
Área do Terreno: 20.670,00m²;
Área Construída: 32.722,08m²;
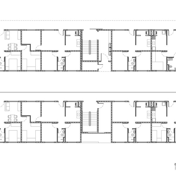
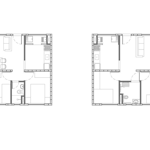
Total de Unidades Habitacionais: 295 (apartamentos – prédios), 132 (casas sobrepostas).
Ficha Técnica:
Arquitetura: Boldarini Arquitetos Associados – Marcos Boldarini e Sergio Faraulo (autores), Simone Ikeda, Daniel Souza Lima e Marina Ataguile Malagolini (colaboradores);
Paisagismo: Boldarini Arquitetos Associados – Marcos Boldarini, Melissa Matsunaga e Simone Ikeda (autores);
Estrutura: Somatec Engenharia;
Fundações: Somatec Engenharia;
Elétrica: Laranjeira Projetos (autor – edifícios), Unika Projetos (autor – casas sobrepostas);
Hidráulica: Laranjeira Projetos (autor – edifícios), Unika Projetos (autor – casas sobrepostas);
Construção: Schahin Engenharia;
Realização: Prefeitura do Município de São Paulo / Secretaria de Habitação;
Gerenciamento de Projetos e Obras: Consócio Bureau/Sistema PRI;
Trabalho Social: Diagonal Transformação de Territórios;
Desenhos: Boldarini Arquitetos Associados;
Fotos: Daniel Ducci (vistas gerais) e Fabio Knoll (aérea).
Prêmios:
- IAB-SP – Habitação de Interesse Social – Vencedor – 2011;
- O Melhor da Arquitetura – Destaque do Juri – 2010.


























